Sales販売物件

行徳第一アクウエリヤスハイツ

価格3,080万円

物件の特徴

~自社施工によるフルリノベーション~
5階部分、南側バルコニーに付き、陽当たり良好!
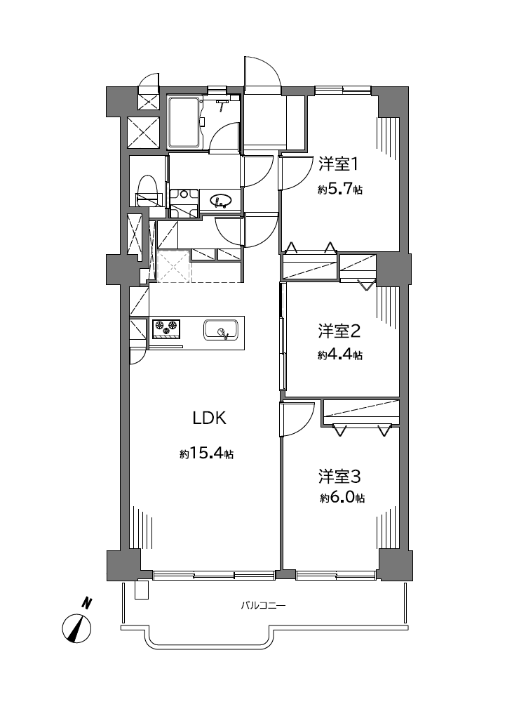
ゆとりの3LDKにパントリーを配備した使いやすい間取り!
ペット飼育可能!(犬・猫1住戸1匹まで)

物件概要

所在地
千葉県市川市新井3丁目
建物構造
鉄筋コンクリート造陸屋7階建
用途地域
第2種中高層住居専用地域
権利
所有権
専有面積
68.04㎡
バルコニー面積
8.13㎡
間取り
3LDK+WIC
総戸数
40戸
所在階
5階部分
方位
南東
築年月
1974年2月(昭和49年2月)
施主
大都工業株式会社
施工会社
大都工業株式会社
管理会社
昭和ビルサービス株式会社
管理形態
全部委託
管理方式
日勤
管理費
14,015円
修繕積立費
11,844円
費用合計
25,859円

施設

エレベーター
敷地内駐車場
空無
駐輪場
月額100~200円
バイク置場
月額300円(原付)

現況

現況
空室
引渡し
相談

備考

■ペット飼育可(一世帯1頭まで)※飼育細則あり
・成長時の体長50cm以下
・人に危害を及ぼす動物、毒を有する動物禁止、他細則有
■間取・仕様変更の可能性有、現況優先
■フルリノベーション12月12日完成済

■取引形態:売主(電話番号:03-6866-1270)

交通

東京メトロ東西線「南行徳」駅 徒歩8分
東京メトロ東西線「浦安」駅 徒歩12分