Sales販売物件

メディウス藤沢

価格4,780万円

物件の特徴

~自社施工によるフルリノベーション~
平成9年築、4階部分、3方向角部屋、陽当り・通風良好の部屋位置!
徒歩1分圏内に、スーパーのダイエー藤沢店、ダイソー藤沢店があり、日々の生活に便利!

物件概要

所在地
神奈川県藤沢市藤沢1023-1
建物構造
鉄骨鉄筋コンクリート造陸屋根地下1階付13階建
用途地域
商業地域
権利
所有権
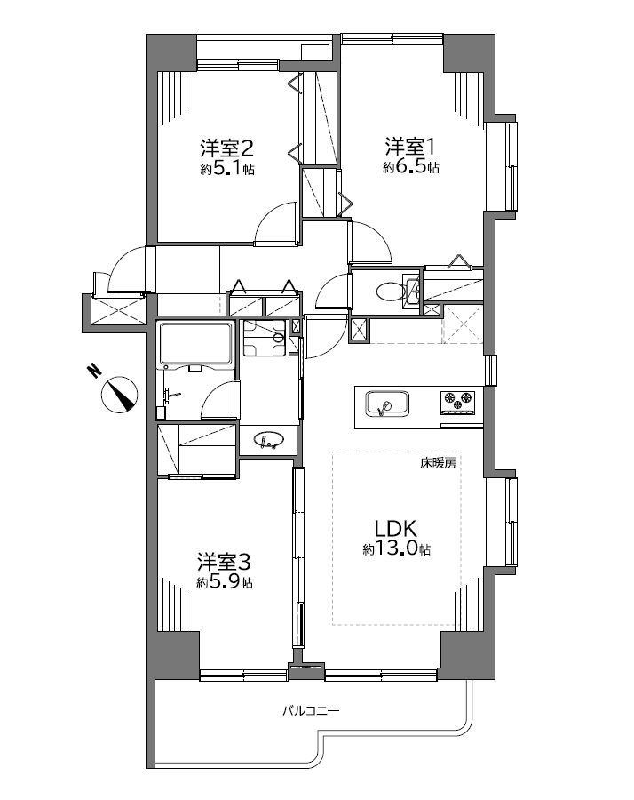
専有面積
67.49㎡
バルコニー面積
9.88㎡
間取り
3LDK
総戸数
37戸
所在階
4階部分
方位
南西
築年月
1997年10月(平成9年10月)
施主
日広建設株式会社
施工会社
日広建設株式会社
管理会社
株式会社東急コミュニティー※
管理形態
全部委託
管理方式
日勤
管理費
16,620円
修繕積立費
14,650円
他費用
トランクルーム使用料:500円
費用合計
31,770円

施設

エレベーター
敷地内駐車場
月額14,500~18,500円
駐輪場
一世帯1台
バイク置場

現況

現況
空室
引渡し
相談

備考

■ペット飼育不可
■オートロック有
■専用トランクルーム有(約2㎡)
■宅配ボックス有
■間取・仕様変更の可能性有、現況優先
※12/1より株式会社ウィッツコミュニティに変更予定

■取引形態:売主(電話番号:03-6866-1270)

交通

JR東海道本線「藤沢」駅 徒歩6分
小田急江ノ島線「藤沢」駅 徒歩6分
江ノ島電鉄線「藤沢」駅 徒歩9分